


FINNI
Moderne und hochwertige Innensauna,
perfekt ausgestattet – für unvergleichlichen Komfort und Entspannung
Die Sauna ist sowohl innen als auch außen mit hochwertiger Verkleidung aus Espenholz der Klasse „A“ ausgestattet. Die Außenseite wird zusätzlich durch stilvolle Elemente aus Abachi-Holz ergänzt. Die Bänke, Rückenlehnen, Hocker und das Holzkissen sind ebenfalls aus Abachi-Holz gefertigt, was für ein harmonisches Gesamtbild sorgt.
Für ein angenehmes Saunaerlebnis sorgt der elektrische Saunaofen HUUM Drop mit einer Leistung von 6 kW, der durch den UKU WiFi-Controller ergänzt wird. Dieser ermöglicht eine komfortable Steuerung der Sauna über das Smartphone.
Die Beleuchtung wird durch warmweiße LED-Leisten unter der unteren Bank und oberhalb der Rückenlehnen sowie durch eine traditionelle Harvia-Lampe erzeugt, die eine gemütliche Atmosphäre schafft.
Zwei unter den Bänken montierte Saunalautsprecher, die über Bluetooth gesteuert werden, garantieren ein erstklassiges Klangerlebnis.
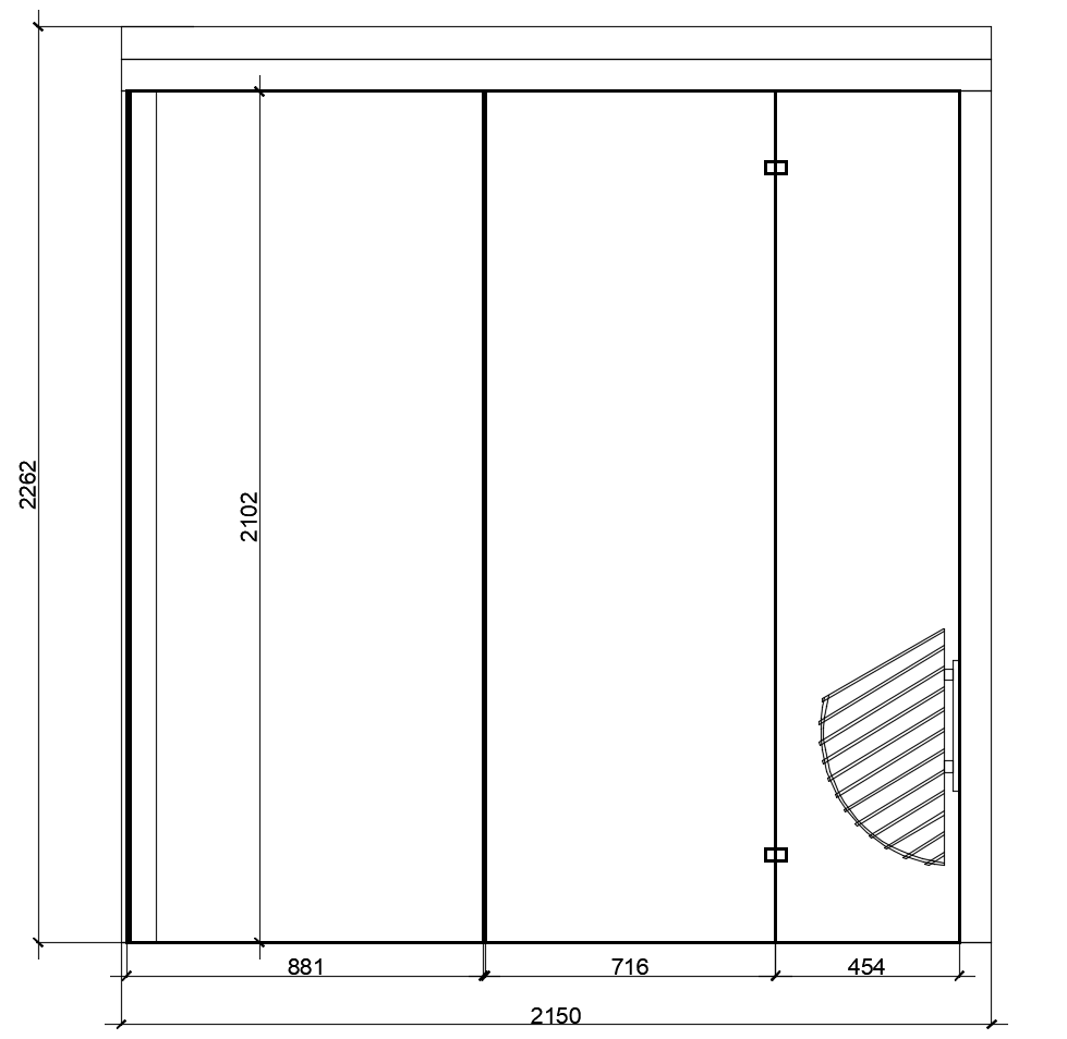
Die Front- und Seitenscheiben sowie die Tür bestehen aus 8 mm starkem, gehärtetem und geschliffenem Glas, während die Türscharniere aus Edelstahl elegant in das Glas eingelassen sind.
Die Frischluftzufuhr erfolgt unter dem Ofen, und die Belüftung wird durch einen diagonal angebrachten Luftauslass an der Seitenwand gewährleistet.


Elektrischer Saunaofen DROP
Der elektrische Saunaofen DROP ist von der reinen Essenz der Natur inspiriert – einem Wassertropfen. Sein elegantes, abgerundetes Design verleiht jeder Sauna eine zeitlose Schönheit. Im Jahr 2015 wurde der DROP mit dem renommierten Red Dot Design Award ausgezeichnet, was seine herausragende Gestaltung unterstreicht. Doch der Ofen überzeugt nicht nur durch sein ästhetisches Erscheinungsbild: Trotz seiner kompakten Bauweise bietet er Platz für beeindruckende 55 kg Steine – mehr als viele herkömmliche Holzöfen. Dadurch erzeugt er einen sanften, langanhaltenden Dampf, der ein unvergleichliches Saunaerlebnis ermöglicht. Veredelt mit langlebigen Details aus Edelstahl, vereint der DROP modernes Design mit hoher Funktionalität. Er ist ein wahrer Genuss für all jene, die Qualität und Stil in ihrer Sauna schätzen.

UKU-Saunabedienfeld CLASSIC
Das UKU-Saunabedienfeld CLASSIC besticht durch seine hochwertige Kunststoffverarbeitung, die sowohl formschön als auch äußerst langlebig ist. Mit seinem minimalistischen Design überzeugt es durch eine besonders einfache Bedienbarkeit. Es ermöglicht Ihnen, den Aufheizvorgang der Sauna zu starten und sämtliche erforderlichen Funktionen mühelos zu steuern. Das Bedienfeld ist zudem in verschiedenen Farben erhältlich, sodass Sie diejenige auswählen können, die am besten zu der Innengestaltung Ihrer Sauna passt. Für zusätzliche Sicherheit ist das Panel mit einer praktischen Kindersicherung ausgestattet. Bitte beachten Sie, dass das Sauna-Steuerungssystem UKU in Ihrer Sauna installiert sein muss, um das Bedienfeld verwenden zu können.

Intelligente Saunasteuerung UKU WiFi
Das UKU WiFi-Steuersystem stellt die perfekte Lösung für Saunen an Orten mit WLAN-Zugang dar, wie beispielsweise in Wohnungen, Büros oder Ferienunterkünften. Es ermöglicht Ihnen, Ihre Sauna bequem vor Ort über das Bedienfeld oder auch aus der Ferne über Ihr Smartphone zu steuern – unabhängig davon, wo Sie sich gerade aufhalten. Mit der benutzerfreundlichen HUUM-App können Sie die Heizdauer, Start- und Endzeit sowie die gewünschte Temperatur der Sauna individuell einstellen. Gleichzeitig haben Sie die aktuelle Temperatur stets im Blick. Sobald die Sauna die eingestellte Temperatur erreicht hat, erhalten Sie eine Benachrichtigung, sodass Sie sofort mit Ihrer Sauna-Anwendung beginnen können. Zudem lassen sich Beleuchtung, Lüftung und Verdampfer nahtlos in das System integrieren, um Ihnen maximalen Komfort zu bieten. Für Ihre Sicherheit sorgt ein integrierter Überhitzungsschutz sowie eine Kindersicherung. Das Steuersystem wird durch das elegante CLASSIC Black-Bedienfeld ergänzt, das nicht nur funktional, sondern auch stilvoll ist.

Sauna Steuergeräte
UKU WiFi
- Intelligente Saunasteuerung
- Steuerung über das Bedienfeld und das Mobiltelefon
- Schlankes und intuitives Design

Das Steuersystem-Set enthält:
- Sauna-Bedienfeld CLASSIC
- Kabel für das Saunabedienfeld (3 m; 4 x 0,34 mm²)
- Hauptmodul
- Temperatursensor
- Türsensor
- Kabel für Temperatur- und Türsensoren (5+5 m; 2 x 0,22 mm²)
Spezifikationen:
- Für Heizgeräte mit einer Leistung bis zu (kW)18
- Temperatur (C):40-110
- Stromversorgung: 3/N~400V | 1/N~230V
- Heizungsdauer (h) 3; 6; 12; 18
- Saunasteuerung: Bedienfeld + Smartphone







